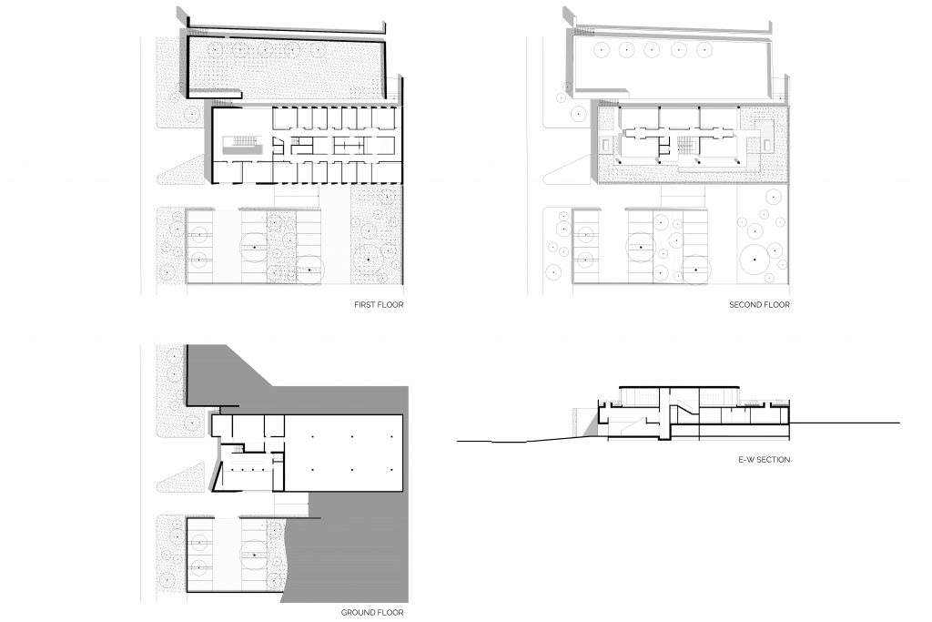
Respecting the subdivision of the urban context, the project organises the site into three parts.
To the north, the existing garden enclosed by the traditional stone wall is preserved. This garden improves the view from the offices of the northern façade, as well as being an exterior space for the workers to enjoy.
The new, rectangular construction is integrated into the landscape in an east-west orientation, in the centre of the site. This orientation provides a better north-south exposure to the working spaces, and allows them to face onto the public space of the avenue, with a façade consistent with the dimensions of the neighbouring buildings.
To the south, the parking is positioned in one of the original parcels, separated by a low wall that conceals the view of the vehicles from the outside, leaving the view of the trees beyond.
The volumes of the lower floors are treated as a sturdy object, defined as mineral and “stereotomic”, which allows for a dialogue with the landscape and the stone walls that characterise the area.
On the upper floor, the offices of the notaries are organised in a “tectonic” structure, transparent and open to the landscape that dominates the rooftop terrace, in continuity with the surrounding environment.






















___
